

Квартира «Levada»
Объект: Квартира 100,1 м²
Расположение: г. Минск, ЖК «Левада»
Год выпуска: 2021
Задача:
Просторная и уютная квартира для молодой девушки.
В этом проекте есть:
Этот проект представлен в журналах mydecor.ru, design-mate.ru и obstanovka.by
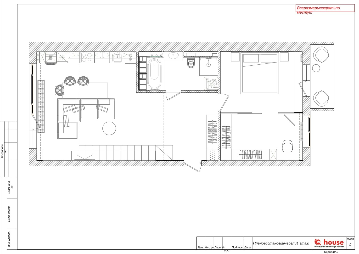
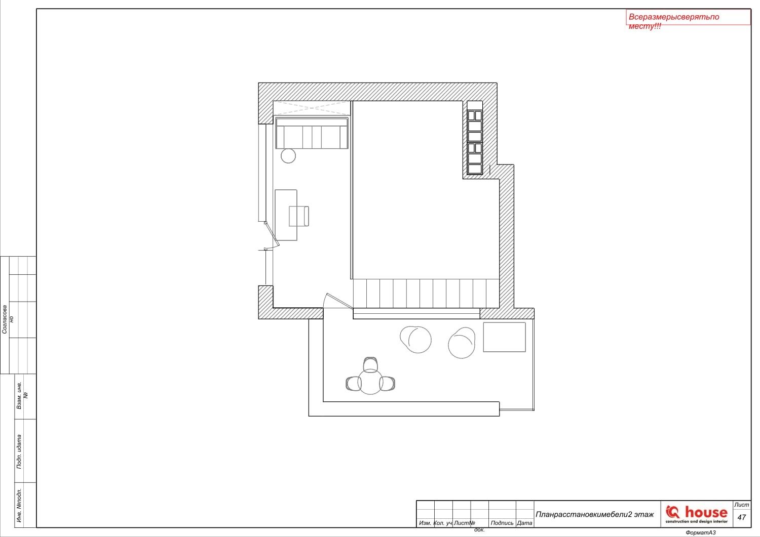
Планировка первого и второго этажа


Изначально в квартире была предусмотрена просторная кухня-гостиная, которую было решено оставить в своих начальных габаритах, огромные окна наполняют квартиру светом и воздухом.

Фото

3D

3D
Лестница
Лестница на второй уровень квартиры задумывалась максимально парящей и воздушной, чтобы не притягивать к себе внимание, именно поэтому был выбран «парящий» конструктив ступеней, а ограждение выполнено из прозрачного закаленного стекла. Второй уровень также ограничен прозрачным стеклом для визуального объединения всего пространства.

Фото

Стройка

Фото
Главным акцентом интерьера стал велюровый изумрудный диван, который идеально сочетается с латунью и мрамором.

Фото

Стройка

3D

3D

3D
Кухня
Кухонный остров сочетает в себе рабочую зону и место для принятия пищи, а также визуально разделяет пространство на зоны кухни и гостиной.

3D
Первый уровень
Второй уровень
На втором уровне расположился дизайнерский рабочий стол от Naver Collection и раскладной диван, на котором в случае необходимости могут остановиться гости на ночь.

Фото

3D

3D

Фото
Коридоры

Фото

Фото

Фото

3D
Спальня с гардеробной

Фото

3D
В спальне расположилась широкая удобная кровать с мягкими бортами, выполненная под заказ по эскизам дизайнера. Над изголовьем латунные вставки, которые пронизывают пространство и визуально увеличивают высоту потолка.

3D

3D
Особое внимание заслуживает гардеробная зона, отделяемая от спальни тонированным зеркальным стеклом. В мебели использованы шпонированные панели, стекло и алюминиевые стойки, вся мебель выполнена по заданию дизайнера.
Санузлы
Два отдельных санузла от застройщика было решено объединить в общее пространство, где разместилась отдельностоящая ванна для релакса от Laufen, просторная душевая кабина, умывальник и хозяйственный шкаф со стиральной и сушильной машинами. Облицована ванная комната испанской широкоформатной плиткой под мрамор.
Используемые материалы и объекты в проекте
Привет, меня зовут Алёна, я арт-директор и ведущий дизайнер
Давайте обсудим дизайн вашего дома













