

Квартира «Minimal»
Объект: Двухкомнатная квартира 70 м²
Расположение: г. Минск, ЖК «Флагман»
Год выпуска: 2020
Задача:
Получить максимум пространства и минимум вещей.
В этом проекте есть:
Этот проект представлен в журналах design-mate.ru и obstanovka.by
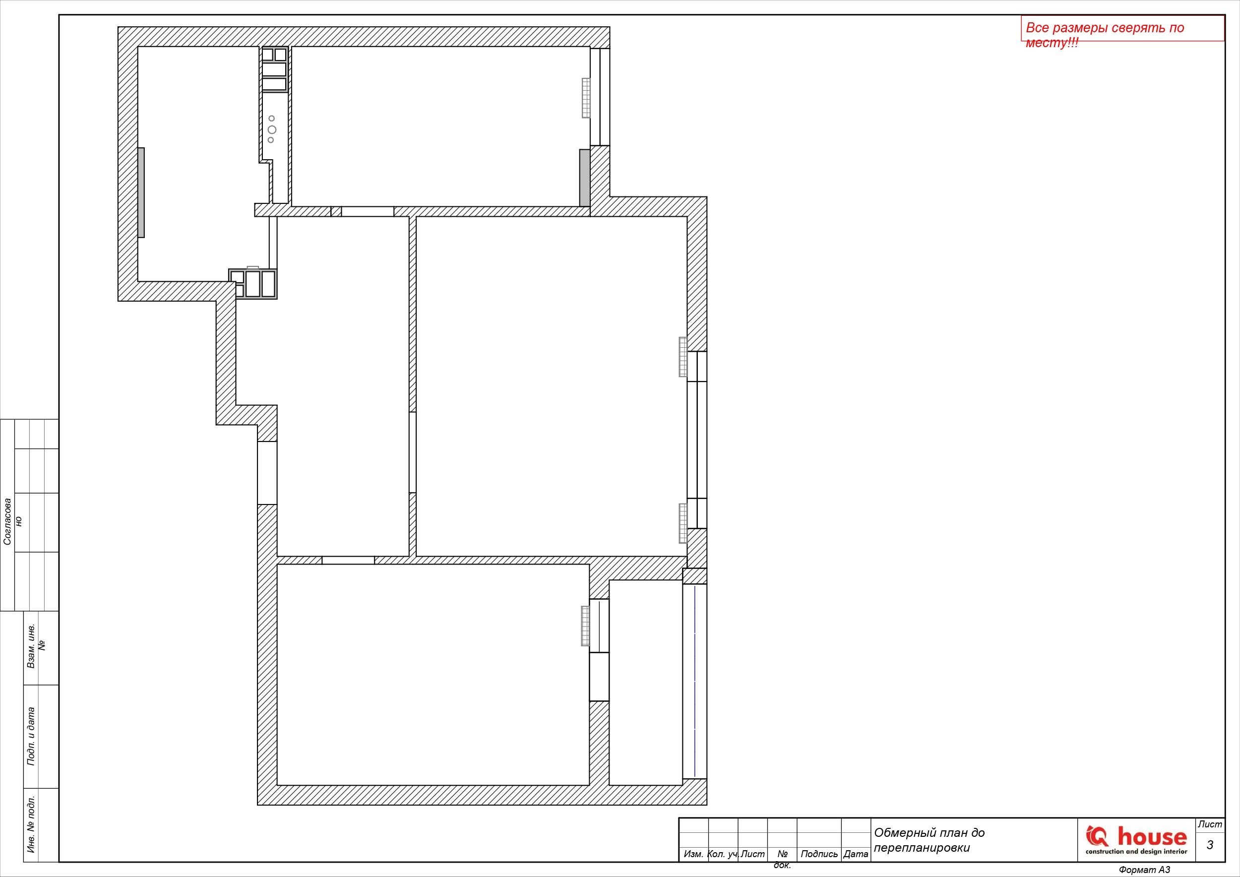
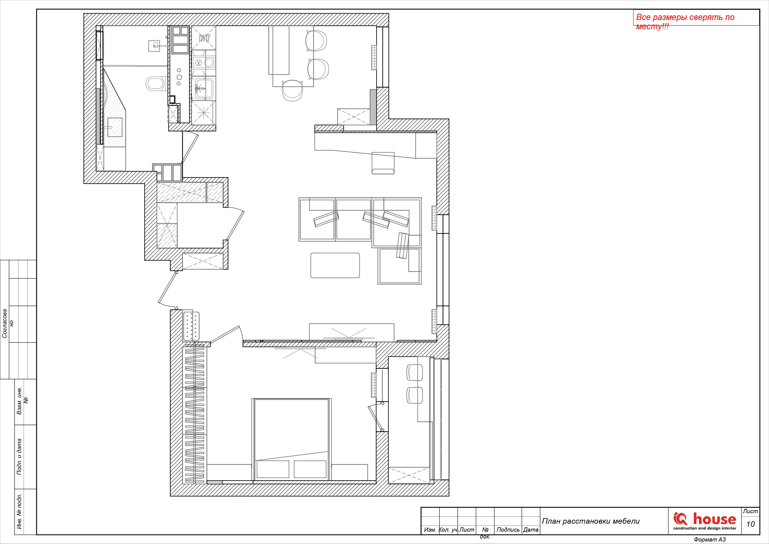
Планировка


Гостиная, совмещенная с кухней

Фото
Изначально в квартире была отдельная кухня, прихожая, спальня и санузел, в результате перепланировки мы избавились от прихожей, оставив небольшую входную зону со шкафом для верхней одежды и обуви, получили объединенное пространство кухни-гостиной, гардеробную, отдельную спальню и санузел.

Фото

Стройка
В качестве стиля выбран минимализм с использованием натуральных материалов - дерево, камень, декоративная штукатурка.

Стройка

Фото

Фото

Фото

3D

Стройка
В квартире предусмотрено большое количество подсветок, которые запитаны на «умный дом». В качестве декоративных элементов используются панели с подсветками, которые придают пространству объем.

Стройка
Входная зона

Стройка
Рабочее пространство

Фото

3D

Фото
Лоджия
Спальня

Фото

Фото

3D

Фото
Квартира вышла достаточно аскетичной, практичной и функциональной.

Фото

3D

3D
Санузел
Используемые материалы и объекты в проекте
Привет, меня зовут Алёна, я арт-директор и ведущий дизайнер
Давайте обсудим дизайн вашего дома























